Caratteristiche
Libero
Porta blindata
Cancello elettrico
Videocitofono
Fibra ottica
Ascensore
Dati dell'immobile
Stato rogito:
Libero
Riscaldamento:
Autonomo
Tipo cucina:
Abitabile
Stato:
In costruzione
Categoria:
- Immobile residenziale
- Appartamento
Contratto:
Vendita
Classe energetica:
A4
Tipo di proprietà:
Intera proprietà
Giardino:
Privato
Anno di costruzione:
2025
Classe immobile:
Media
Tipo impianto riscaldamento:
A pavimento
Impianto climatizzazione:
Predisposizione impianto
Avanzamento lavori:
Consegna prevista marzo 2026
Stato immobile:
In costruzione
Rif. annuncio:
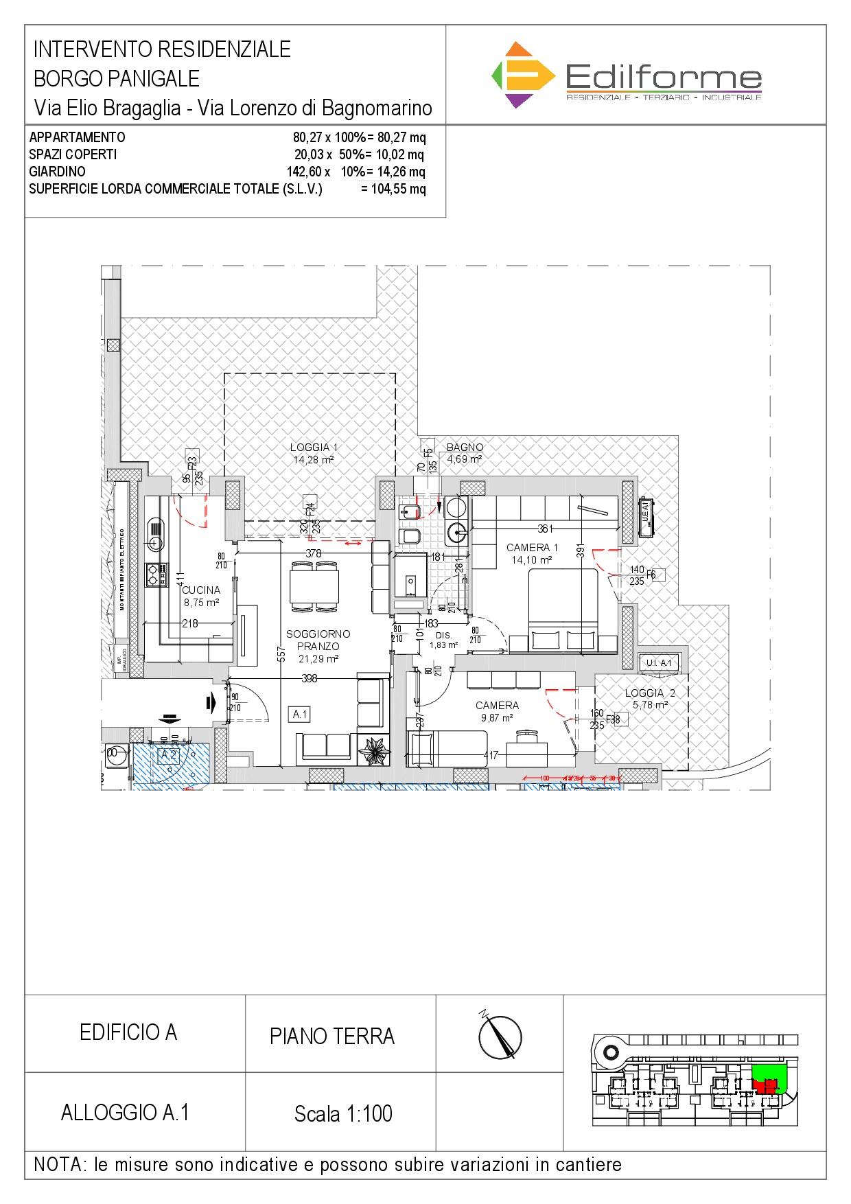
BORGO PANIGALE - ALLOGGIO A1
Piano fuori terra:
Terra
Camere da letto:
2
Altre camere/stanze:
1
Numero piani edificio:
5
stato vendita:
Disponibile
all_file_zip:
Location
- Emilia Romagna
- Bologna
- BOLOGNA
- Borgo Panigale
Via Bragaglia
18















